
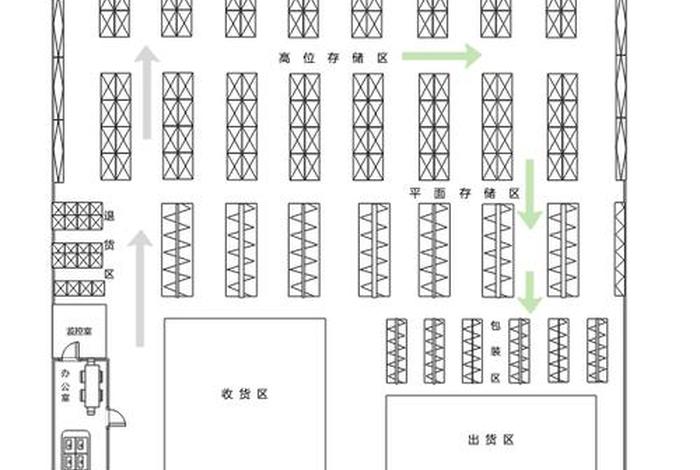
电商仓库布局图、电商仓库布局图片 ,对于想学习电商知识的朋友们来说,电商仓库布局图、电商仓库布局图片是一个非常想了解的问题,下面小编就带领大家看看这个问题。
在订单量爆炸式增长的电商时代,一张科学的仓库布局图堪比物流系统的"DNA图谱"。本文将通过6大核心维度,带您解剖那些让仓储效率飙升300%的布局密码,并附实战型布局图片解析,让您直观掌握从"杂乱无章"到"行云流水"的蜕变关键。
优秀的仓库布局首先是一场空间革命。垂直立体货架系统能提升200%存储密度,如某服装电商采用7米高自动穿梭货架后,SKU容量从8万激增至24万。动态拣货通道宽度需根据周转率设定:高频商品区保留3米主通道,低频区可压缩至1.5米。特别要注意的是,消防通道必须用鲜红色在地面标注,这是许多新手布局图中易忽视的"生命线"。
U型动线布局能减少30%拣货路径,就像宜家商场精心设计的单循环路线。某母婴电商的测试数据显示,将传统的S型动线改为鱼骨型后,拣货员日均步数从2.1万降至1.4万。重点商品应布置在动线"黄金眼"位置——即主通道第一个右转区,这里的人流接触率高达78%。别忘了在动线交汇处设置缓冲暂存区,这是避免"物流血栓"的关键设计。

现代仓库布局图已进化成数字孪生体。AGV机器人路径需要用蓝色虚线在图纸上标注,其充电桩应像加油站般分布在作业区外围。某3C电商的AR拣货系统,通过头顶投影将拣货路径直接显示在地面,使新人培训周期缩短65%。特别提醒:5G基站位置需标注在布局图右上角,这是确保IoT设备全仓覆盖的"神经中枢"。
拣货工作台高度应遵循78cm黄金标准,就像钢琴键盘的精密设计。某食品电商的 ergonomic study 显示,将重货货架从底层调整至腰部高度后,员工肌肉劳损率下降42%。休息区必须设计在自然光照区域,最好配备落地窗——这能让15分钟小憩效果提升3倍。警示:液压车转弯半径要在图纸上用扇形阴影标注,这是安全设计的"死亡盲区"。
生鲜仓的布局图需要叠加温层分布热力图。某冷链电商的-18℃冷冻区采用迷宫式风幕设计,能耗降低22%。电子仓的防静电地坪要用网格线特殊标注,湿度敏感区建议添加紫色预警边框。容易被忽略的是:电池存放区需要独立通风系统,这个细节在许多布局图中常被简化为普通储物区。

智慧仓库布局图必须包含"生长纹"。某TOP美妆电商在图纸上预留模块化扩展接口,大促期间能快速拼接临时分拣岛。可移动隔断墙要用虚线标注,就像乐高积木的拼接指南。关键提示:IT机房周边要留出2米设备扩容带,这是数字化仓库的"未来脐带"。

当您凝视这些充满几何美学的仓库布局图片时,实际上看到的是"空间算法"与"人性温度"的结晶。从京东亚洲一号的无人机航道设计,到小红书爆款仓的彩虹分区系统,顶级电商玩家早已将平面图纸升维成动态作战沙盘。记住:最好的布局图永远在迭代,就像电商行业本身,唯一不变的就是变化本身。
以上是关于电商仓库布局图、电商仓库布局图片的介绍,希望对想了解电商知识的朋友们有所帮助。
本文标题:电商仓库布局图、电商仓库布局图片;本文链接:https://ywyongle.comhttps://ywyongle.com/dszhis/418109.html。